Séverine et Stéphane, un jeune couple qui voulait construire à Ascain, seront-ils les victimes collatérales de la rancune d’Anita Lacarra, l’adjointe au maire condamnée pour recel de biens et prise illégale d’intérêt ?

Ils ruminaient depuis longtemps, les Lacarra. ils avaient la haine contre l’association « Ascain cadre de vie » qui avait fait condamner Anita en correctionnelle cette année 2021. « vous avez détruit une famille, sortez d’ici » avait lancé Philippe Laccara au secrétaire de l’association lors d’une séance publique ! lequel avait préféré quitter la salle tant l’ambiance était tendue.
Détruit ? en tous cas pas ruinés puisque les Lacarra viennent de vendre un terrain (objet de la prise illégale d’intérêt) pour 1.65 millions et qu’ils en possèdent d’autres…
Mais que vaut l’argent quand le glaive de la justice s’abat sur une élue comme si elle fut un simple citoyen ?
Condamnée, elle a donc son ticket d’entrée au cénacle de moins en moins fermé de ces repris de justice qui, comme disait Jean René Etchegaray parlant d’Odile de Coral : « ne se sentent pas coupables ».
Dieu merci, tout cela a ému le maire Jean Louis Fournier, un homme de cœur. Témoin de moralité, au procès d’Anita, l’avocat de la défense avait mis en avant sa grande humanité. Selon lui, « la bande de Bordelais » (?) d’« Ascain cadre de vie » empêchait le projet social du maire dont le but était «d’héberger des immigrants » ! Tout ça déclamé sans rigoler.
Est-ce dans ce même élan d’altruisme que Jean Louis Fournier a voulu donner une chance de réinsertion à la condamnée Anita, en la nommant adjointe déléguée aux affaires sociales ? Certainement! En outre, ses émoluments d’ajointe vont l’aider à honorer son amende, faute d’honorer autre chose.
Et puis, comment se priver de cette « experte en matière d’urbanisme » qui a su déployer tant de valeur pour ses propres intérêts ?
Aussi, bravant la mise en garde du procureur, « puisqu’il [Jean Louis Fournier] n’avait pas su faire le ménage dans son équipe, c’est le code pénal qui le ferait », il a conservé Anita à la mairie, elle et ses casseroles.
Mais c’est bien connu, « l’injure n’est effacée que l’ennemi à terre ». Aussi Jean Louis Fournier ne pouvait laisser Anita sans réconfort en cette période de Noel.
Et la chance fut avec lui. Le cadeau pour Anita était là, devant ses yeux et il ne l’avait pas vu !
Déroulé des faits :
Règlement de comptes de Noël

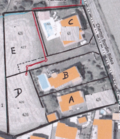
A Ascain, vivent côte à côte le président, le trésorier et le secrétaire de l’association « Ascain cadre de vie ». (maisons A,B & C)
Un 5° terrain « E » de 1300 m² est disponible. Ses propriétaires, très généreusement, voulurent en faire profiter un jeune couple de leurs amis et le vendirent à Stéphane et Séverine avec une décote de 25 % sur le prix pratiqué, soit 230 000 €. (170 €/m²).
Promesse de vente signée le 24 août 2021.
Le notaire envoie ensuite à la mairie, mi-octobre, la « Demande d’Intention d’Aliéner » du terrain.
Cette DIA tombe comme un signal providentiel. Le maire découvre ce terrain jouxtant ceux de leurs ennemis jurés ! et une idée lui vient : le préempter sans rien dire pour ne pas éveiller les soupçons (ni les réactions d’ « Ascain cadre de vie ») pour y construire 9 logements sociaux. Du pur altruisme.
Fichtre, neuf logements sociaux sur cette parcelle de 1300 m², moins 350 m² de servitude d’accès, 300 m² minimum de parking, le terrain autour, le hall, local poubelle, EDF, aire pour enfants, etc.. combien reste-il de surface pour les 9 logements ? pas bezef, sauf ériger un petit immeuble de 2/3 niveaux avec vue directe sur les terrains et piscines de ces vilains « Ascain cadre de vie » et leur barrer la vue sur la Rhune. Bien fait ! Quel baume pour soulager les blessures d’Anita ! Un vrai conte de Noël.
Pendant ce temps, on laisse le jeune couple besogner sur son projet, engager des frais, échafauder les plans avec le constructeur pressenti (la société EGIN HEMEN) réfléchir aux contraintes, aux servitudes de passage et d’évacuation d’eau, effectuer les études de sol, etc.. pour ajuster strictement leur budget, bien sûr, limité.
Le service de l’urbanisme de la mairie d’Ascain (qu’ils rencontreront et contacteront à plusieurs reprises) leur suggèrera même quelques modifications pour mieux présenter leur projet. De la part de la mairie qui savait leur cause perdue, quel machiavélisme !
Loin de nous de penser qu’encourager ce couple dans leur projet était le parfait écran pour prendre tout le monde de vitesse et surtout « Ascain cadre de vie »
Pourtant, le 14 octobre, lors de la réunion de la commission urbanisme, sous une vague raison, le maire soustrait le dossier de ce terrain « E » et concomitamment, écrit au préfet lui demandant de préempter ledit terrain, toujours sans rien dire au conseil municipal.
Ainsi, quand, le 02 décembre 2021, ce couple, plein d’espoir, dépose son permis de construire, la réponse ne se fait pas attendre. Le lendemain, le maire leur envoie un courrier recommandé leur annonçant que leur terrain est préempté. Lettre reçue le 7 décembre.
Séverine et Stéphane, aussi révoltés que dévastés, réagissent immédiatement et obtiennent que le maire les reçoive le même jour. Ce dernier, omettant de dire que la demande de préemption datait de mi-octobre, feindra de tout découvrir : « ah si j’avais su …je vais voir ce que je peux faire …. je ne promets rien » etc.. et les larmes de crocodiles versées, le bouquet final de ses lamentations sera sa façon de conclure en balayant le problème : « Allez ! ça va aller ! Y’a pas mort d’homme ! ». Devant l’assistance médusée, Stéphane lui lancera « pour un maire, ce que vous venez de dire est scandaleux ! »
Il faudra attendre le 15 décembre lors du dernier Conseil Municipal, pour que, en fin des délibérations, suite à la question de Mme Bénédicte Luberriaga, le maire Jean Louis Fournier soit contraint d’annoncer publiquement cette préemption. Aucun conseiller, même de la majorité (soi-disant) n’était au courant ! On ne sait pas si Madame Anita Lacarra a montré elle aussi sa surprise.
Voilà, comment dans une municipalité « aux manettes » (dixit le maire), une fine équipe peut faire joujou avec son pouvoir et l‘argent du citoyen !
Le maire Jean Louis Fournier s’est-il Fournier le doigt dans l’œil ?

Les explications du maire recueillies par SO sont assez pathétiques. Avec la sincérité d’un âne qui recule, Jean-Louis Fournier compatit à la déception du jeune couple : « je comprends leur désarroi, mais quand j’ai vu ce terrain de plus de 1000 m² en vente à 230 000 €, sur ce secteur je n’avais d’autre choix que demander au préfet de préempter »
Pas d’autre choix ? à voir :
L’opposition avait précédemment demandé au maire de préempter un terrain de 7115 m², dans le même secteur, au prix de 168 € le m², donc moins cher. Mais, certainement, il manquait au maire le « coup de cœur »
Coup de cœur qu’il n’a pas eu non plus lors des précédentes transactions. De 2019 à nos jours, il y eut sur Ascain 44 ventes de terrain dont 25 à des prix inférieurs et parfois largement inférieurs aux 170 € / m² du terrain en question : Aucun n’a été préempté.
Quelles fantastiques qualités a donc ce terrain, sauf de jouxter ceux des « emmerdeurs » de « Ascain cadre de vie » ?
Il ne faut pas désespérer
Ces arcanes misérables ne doivent pas occulter la générosité et la sagesse de bien d’acteurs locaux, en défense du jeune couple.
D’abord, si les maires croient que se lamenter sur le problème des jeunes qui ne peuvent se loger suffit à remplir leur mandat… heureusement, des citoyens plus généreux, agissent.
Apprendre que des propriétaires fonciers sont sensibles à ce problème et n’hésitent pas à réduire le prix de leur cession foncière, donne espoir ; et il n’y a pas qu’à Ascain (RamDam est en contact avec un autre propriétaire terrien prêt à décoter son terrain constructible mais se heurte à la réticence d’un maire. Cela fera l’objet d’un prochain article)
Plaisir aussi d’apprendre que le constructeur EGIN HEMEN pressenti par le jeune couple renonce aux frais engagés (plans, études, frais de renonciation) Il pourrait prétendre à 27 000 € quand même. Ça mérite que RamDam lui fasse un peu de pub.
Et enfin, Habitat Sud-Atlantic, choisi par le maire pour la construction de ces 9 logements qui, découvrant le contexte, semble désirer ce désolidariser de cette bouillabaisse pour ne pas ternir son image.
C’est autre chose que celle d’un Maire dont le problème des jeunes semble l’attendrir autant qu’un cautère sur une jambe de bois.
Mais saluons son don de gestionnaire, il aura profité du terrain au prix négocié par Stéphane et Séverine et des frais que ces derniers ont engagés, comme de la générosité de EGIN HEMEN.
Il faudra bien ça pour compenser les frais d’avocat dans les actions qui semblent déjà en cours.
Michel Gellato
lseul l’intêret personnel prime sur ce duo satanique « LA-FOUR » d’Ascain;ce qui explique:feu vert seulement aux Promoteurs!!!!Ascain:future Cité!!!!
J’aimeJ’aime